150套房源!福田核心地段住房项目顺利封顶

深圳人才安居
2023-11-23 13:11
摘要

安家福田又有新选择!

安家福田又有新选择!

福田区安居景贤阁

近日顺利封顶

标志着项目

正式迈入新阶段

安居景贤阁

位于福田区莲花街道

景田北四街北侧

由人才安居集团旗下

福田人才安居公司投资建设


项目简介

▲效果图

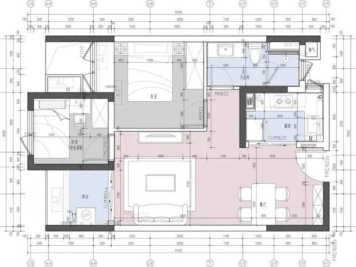
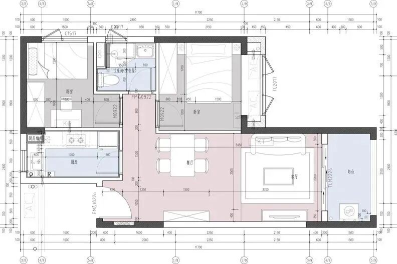
项目总用地面积3084.22㎡,总建筑面积21213.52㎡,共提供150套保障性住房,有65㎡两房户型100套,80㎡三房户型50套,可满足单身或家庭需求,预计于2024年8月底完成竣工备案。

户型图首次公开 ↓

项目配套

  • 安居景贤阁项目位于地铁“香梅北站”500米及“景田站”1公里范围内,周边居住氛围浓厚、配套设施齐全;

  • 拥有幼儿园、小学、初中及高中等优质教育资源;

  • 广州中医药大学深圳医院、北京大学深圳医院等医疗资源;

  • 景田街心公园、梅林山公园、莲花山公园等景观资源;

  • 3公里范围内畅享图书馆、少年宫等深圳城市中心配套。

项目于2021年4月28日开工,为高标准建设该项目,福田人才安居公司多次组织监理、施工单位学习第三方质量、安全和交付评估细则,不断强化项目人员对质量、安全管理和评估标准的认识,运用智慧工地APP进行监督,实时掌握项目建设情况。

该项目曾获得福田区“十静十净工地”及“深圳市建设工程安全生产与文明施工优良工地”称号。

数据显示

近几年福田人才安居公司

筹集建设保障性住房近1.9万套

下一步将继续

拓宽项目筹集渠道

为福田高质量发展

提供安居保障

编辑 刘悦凌 审读 刘春生 二审 高原 三审 詹婉容

免责声明
未经许可或明确书面授权,任何人不得复制、转载、摘编、修改、链接读特客户端内容
推荐阅读

读特热榜

IN视频

鹏友圈

首页